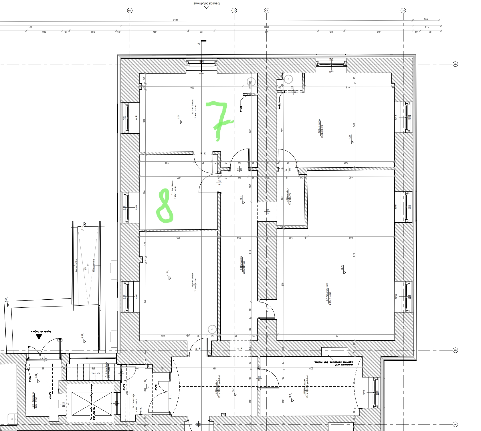
Do 31 marca 2025 r. można zgłaszać prace w konkursie na „Opracowanie koncepcji architektonicznej aranżacji przestrzeni pokoi nr 7 i 8 na parterze budynku Wydziału Inżynierii Środowiska i Energetyki (W-2)” pod patronatem Dziekana Wydziału Inżynierii Środowiska i Energetyki Politechniki Krakowskiej im. Tadeusza Kościuszki prof. dra hab. inż. Sławomira Grądziela.
Edit: poniżej publikujemy odpowiedzi na pytania!
Konkurs adresowany jest do studentów PK, którzy indywidualnie lub zespołowo zaproponują rozwiązania dla strefy studenckiej na WIŚiE PK.
Uczestnicy mają szansę na zdobycie nagród finansowych, a zwycięska koncepcja doczeka się realizacji i będzie służyć kolejnym rocznikom.
Na konkursowe prace czekamy do 31 marca 2025 r.
Dla zwycięzców przewidziano nagrody: za zajecie pierwszego miejsca – 3,000 zł, za zajęcie drugiego – 1,500 zł, za zajęcie trzeciego miejsca – 1,000 zł.
Szczegółowe informacje na temat konkursu można znaleźć w Regulaminie konkursu wraz załącznikami.
Pytania:
Czy konieczne jest oddawanie plansz w formie cyfrowej na pendrive lub płycie, czy wystarczy przesłać je na maila?
– Wystarczy przesłać plansze na adres e-mail Organizatora: konkurs.wisie@pk.edu.pl, o ile utrzymana zostanie zasada anonimowości. Nazwa wysyłającego nie może wskazywać Uczestnika Konkursu.
Czy opis przyjętych rozwiązań ma być opisem technicznym czy wystarczy opisanie idei i koncepcji?
– Zgodnie z zapisami pkt 2. Regulaminu konkursowego opis powinien być zarówno opisem technicznym jak również opisem idei.
Jak długi powinien być opis?
– Nie determinuje się długości opisu. Powinien on zawierać kluczowe informacje.
Czy w kosztorys mają być włączone wszystkie przedmioty przyjęte w koncepcji (Meble, sprzęt AGD, ozdoby)?
– Oczekiwaniem Organizatora Konkursu jest jak najpełniejszy kosztorys.
W jaki sposób podać nazwiska autorów, jeśli praca ma być zaszyfrowana?
– Wraz z pracą należy złożyć kopertę oznaczoną liczbą złożoną z 8 cyfr, w kopercie należy umieścić nazwisko/nazwiska Uczestnika/-ów Konkursu.
